Soluzione abitativa ECONEST 88 – Tre camere da Letto
La ECONEST 88 è una casa prefabbricata compatta, progettata per offrire comfort e funzionalità in uno spazio ridotto. Ideale come prima abitazione, casa vacanza o soluzione off-grid, unisce design moderno, materiali resistenti e facilità di installazione.
Caratteristiche principali
Struttura in acciaio coibentato.
Impianto elettrico completo con predisposizione aria condizionata
Bagno e cucina già installati
Infissi in alluminio con doppi vetri e zanzariere
Terrazza esterna da 18 m²
Consegna ed installazione rapida
L'esterno della casa
Design Esterno e Dettagli della ECONEST 88
La ECONEST 88 colpisce subito per il suo design moderno e armonioso, capace di integrarsi perfettamente con qualsiasi ambiente naturale, dalla giungla tropicale al giardino di casa.
Ogni linea, materiale e dettaglio è stato studiato per garantire bellezza, solidità e comfort nel tempo.
Tetto doppio rinforzato e spiovente
Il suo tetto a doppia falda rinforzato non è solo una scelta estetica: è un elemento tecnico che assicura massima resistenza alle intemperie, ottimo deflusso dell’acqua piovana e una temperatura interna sempre equilibrata.
L’angolazione spiovente contribuisce a creare un profilo elegante e slanciato, donando alla casa un aspetto contemporaneo ma perfettamente in armonia con la natura.
Patio coperto da 18 m²
Uno degli elementi più apprezzati della ECONEST 88 è il suo ampio patio esterno di 18 m², completamente coperto dal prolungamento del tetto.
Questo spazio diventa il cuore della casa: ideale per rilassarsi, pranzare all’aperto o godersi il tramonto, protetti dal sole e dalla pioggia.
Il tetto che lo copre dona continuità alla struttura e aggiunge un senso di protezione e accoglienza.
Rivestimento effetto legno
L’esterno della casa è rifinito con un rivestimento effetto legno, caldo e naturale alla vista, ma estremamente resistente nel tempo.
Questo materiale riproduce fedelmente le venature del legno vero, offrendo un’estetica elegante senza la necessità di manutenzione costante.
Il risultato è una combinazione perfetta tra stile moderno e fascino naturale.
Infissi in alluminio di alta qualità
Completano l’estetica della ECONEST 88 i moderni infissi in alluminio, dotati di vetrocamera isolante e zanzariere integrate.
Le ampie finestre permettono alla luce naturale di illuminare gli ambienti interni, creando spazi luminosi e ventilati,
mentre i materiali assicurano tenuta, isolamento termico e lunga durata anche in climi tropicali o umidi.
La ECONEST 88 è molto più di una casa prefabbricata: è un rifugio di design, dove ogni dettaglio architettonico è pensato per offrire una sensazione di libertà, armonia e contatto con la natura.
L'interno della ECONEST 88
Interni della ECONEST 88: Comfort, Funzionalità e Design
Gli interni della ECONEST 88 sono progettati per offrire il massimo comfort in ogni metro quadrato.
Grazie a una disposizione intelligente degli spazi e a finiture moderne, questa casa prefabbricata unisce estetica e praticità, garantendo un’esperienza abitativa accogliente, efficiente e pronta all’uso.
Zona giorno luminosa e multifunzionale
Il cuore della casa è l’ampia zona living con cucina integrata, pensata per vivere e condividere momenti di relax.
Le ampie finestre in alluminio con vetrocamera riempiono gli ambienti di luce naturale, creando un senso di spazio e apertura verso l’esterno.
Il pavimento effetto legno dona calore e continuità visiva, mentre l’illuminazione LED a basso consumo completa un’atmosfera moderna e accogliente.
Cucina compatta e funzionale
La cucina è già arredata con mobili su misura, lavello in acciaio inox e pensili superiori.
Tutte le predisposizioni elettriche e idrauliche per frigorifero, forno, piano cottura e lavastoviglie sono già integrate, permettendo al cliente di completarla secondo il proprio gusto.
Il top in materiale composito resiste all’umidità e all’usura, garantendo durata e praticità quotidiana.
Camere da letto comode e silenziose
La ECONEST 88 dispone di tre camere da letto separate, ideali per una coppia, una famiglia o come stanza per ospiti e studio.
Le pareti coibentate e gli infissi a doppio vetro assicurano un’ottima insonorizzazione e comfort termico, creando ambienti tranquilli e riposanti.
Gli spazi sono pensati per essere personalizzati con arredi modulari e soluzioni salvaspazio.
Ampio Bagno moderno e completo
Il bagno è già completo di mobili lavabo, WC, bidet e doccia.
Tutte le finiture sono impermeabili e facili da pulire, mentre la finestra con zanzariera garantisce ventilazione naturale.
È presente la predisposizione per scaldabagno elettrico da installare in base alle esigenze del cliente.
Impianti e comfort abitativo
La casa è dotata di un impianto elettrico completo con prese, interruttori e illuminazione LED in ogni stanza.
È presente la predisposizione per l’aria condizionata e tutti gli scarichi idrici sono già collegati all’impianto interno.
L’isolamento termico e acustico dei pannelli coibentati garantisce un clima interno stabile e silenzioso tutto l’anno.
Gli interni della ECONEST 88 combinano efficienza, eleganza e comfort in uno spazio compatto ma sorprendentemente vivibile.
Una casa che unisce il design moderno alla praticità quotidiana, pronta a diventare il tuo rifugio personale.
LA SCHEDA TECNICA
DATI GENERALI
Modello: ECONEST 88
Superficie interna: 70 m²
Superficie terrazza esterna: 18 m²
Superficie totale: 88 m²
Struttura: Casa modulare prefabbricata in acciaio con pannelli coibentati
Tipologia: Abitazione monomodulo espandibile, pronta all’uso
La ECONEST 88 è progettata per offrire comfort, efficienza e libertà.
Unisce design moderno e praticità costruttiva in uno spazio compatto ma completo, ideale come casa principale, seconda abitazione o soluzione off-grid.
STRUTTURA E MATERIALI
Telaio: Acciaio zincato ad alta resistenza, verniciato a polvere per protezione anticorrosiva
Pareti esterne: Pannelli sandwich coibentati con isolamento termico e acustico
Tetto: Doppia falda rinforzata e spiovente, con pannello coibentato a doppia lamiera
Pavimento: Struttura in acciaio con pannello isolante e finitura in PVC effetto legno
Terrazza: Struttura metallica con pavimento antiscivolo e ringhiera di sicurezza
Rivestimento esterno: Effetto legno naturale, resistente e senza necessità di manutenzione
INFISSI E FINESTRE
Porte e finestre: In alluminio con vetrocamera isolante
Zanzariere: Integrate su tutte le finestre apribili
Porta d’ingresso: In acciaio con serratura di sicurezza
Porta scorrevole in vetro: Accesso diretto al patio esterno
Isolamento: Eccellente tenuta termica e acustica
IMPIANTO ELETTRICO
Impianto elettrico completo e certificato
Quadro elettrico con interruttori magnetotermici e salvavita
Prese e interruttori installati in tutti gli ambienti
Predisposizione per aria condizionata (unità non inclusa)
Illuminazione LED a basso consumo
Predisposizione elettrica per elettrodomestici e scaldabagno
IMPIANTO IDRAULICO
Impianto idrico completo integrato nella struttura
Predisposizione per collegamento alla rete idrica e scarichi fognari
Tubi e raccordi principali installati
Predisposizione per lavatrice
Tutti gli impianti ispezionabili per manutenzione
CUCINA
Mobili cucina inclusi (base, lavello in acciaio inox, pensili superiori)
Top in materiale composito resistente all’umidità
Predisposizione elettrica e idraulica per frigorifero, piano cottura e forno (non inclusi)
Spazio ottimizzato per massima funzionalità
BAGNO
Mobili bagno inclusi (lavabo con mobile e specchio)
WC e doccia inclusi
- Bidet
Pavimento e pareti impermeabili
Predisposizione per scaldabagno elettrico
Ventilazione naturale tramite finestra con zanzariera
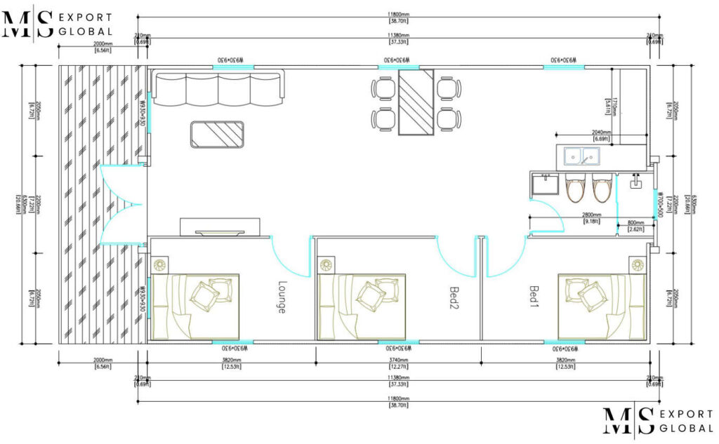
ZONA NOTTE E LIVING
Suddivisione interna in 3 camere da letto, 1 bagno, 1 zona giorno con cucina integrata
Spazi ottimizzati e luminosi con ampie finestre
Non sono inclusi altri mobili (letti, armadi, tavolo, divano, ecc.)
Ottimo isolamento termico e acustico
ISOLAMENTO E COMFORT
Isolamento termico e acustico ad alte prestazioni
Finestre con doppi vetri e zanzariere
Predisposizione per aria condizionata e scaldabagno
Possibilità di installazione pannelli solari (non inclusi)
Materiali ecologici e durevoli
TRASPORTO E INSTALLAZIONE
Fornita in modulo prefabbricato espandibile
Installazione rapida su fondamenta in cemento (non incluse)
Collegamenti agli impianti esterni a carico del cliente
Peso totale: ca. 8 tonnellate
Dimensioni chiusa: ca. 5.8 m × 2.2 m × 2.5 m
Spedizione in container standard da 40 piedi
COSA È INCLUSO
✅ Struttura prefabbricata completa
✅ Mobili cucina
✅ Mobili bagno
✅ WC, doccia e bidet
✅ Infissi con doppi vetri e zanzariere
✅ Impianto elettrico e idraulico completo
✅ Predisposizione per aria condizionata e scaldabagno
COSA NON È INCLUSO
❌ Fondamenta in cemento
❌ Arredi interni (letti, tavoli, divani, armadi, ecc.)
❌ Elettrodomestici (frigo, forno, piano cottura, lavatrice, scaldabagno, aria condizionata)
❌ Collegamenti finali a rete idrica, elettrica e fognaria
❌ Trasporto, gru e installazione sul terreno
COME FUNZIONA – IL PROCESSO DI ACQUISTO E INSTALLAZIONE
Acquistare una ECONEST 88 nel Villaggio Heaven One è semplice e guidato passo dopo passo dal nostro team.
Ecco come funziona:
1️⃣ Scelta del lotto e prenotazione
Scegli il tuo lotto all’interno del Villaggio Heaven One in base alla posizione e alla metratura.
Per bloccare il terreno è sufficiente versare €399 di spese amministrative e firmare online la Promesa de Compra.
2️⃣ Versamento del deposito
Dopo la prenotazione, invii i tuoi documenti e il deposito di conferma:
– €2.500 se acquisti solo il terreno o solo la casa
– €5.000 se acquisti il pacchetto completo (casa + terreno)
Il pagamento viene effettuato alle società competenti in base al tipo di acquisto
(Costa Rica Estate Six SRL per i terreni, MS Export Global Ltd per le case).
3️⃣ Firma del contratto e saldo
Lo studio legale M&P Lawyers prepara il contratto di compravendita,
che potrai firmare in Italia o direttamente in Costa Rica.
In questa fase si effettua il saldo del terreno e/o della casa, a seconda del pacchetto scelto.
4️⃣ Produzione e spedizione
Dopo la firma del contratto, la tua ECONEST 88 entra in produzione presso il nostro stabilimento partner.
Una volta pronta, viene spedita e trasportata fino al Villaggio Heaven One, dove il nostro team segue tutte le pratiche logistiche e doganali.
5️⃣ Installazione nel tuo lotto
Potrai scegliere tu quando installare la casa, puoi anche tenerla chiusa ed aprirla solo quando ti servirà. Sarai tu a scegliere dove installare la casa all’interno del tuo terreno. Ti verranno proposte diverse soluzioni di fondamenta che rispecchiano le tue esigenze (escluse nel prezzo della casa).
L’apertura e l’installazione della casa sono incluse nel prezzo per i clienti Heaven One.
Tutto è gestito da tecnici locali qualificati, supervisionati dal nostro team.
6️⃣ Consegna chiavi in mano
Al termine dei lavori riceverai la tua ECONEST 88 pronta all’uso.
Potrai arredarla liberamente o richiedere il nostro servizio di personalizzazione e arredamento opzionale.
In pochi passi la tua casa nel cuore verde del Costa Rica diventa realtà.
Semplice, trasparente e seguita dal nostro team dall’inizio alla fine.
Richiedi maggiori informazioni
Vuoi ricevere tutti i dettagli sulla casa ECONEST 88 e sui terreni disponibili nel Villaggio Heaven One? Il nostro team ti fornirà tutte le informazioni su prezzi, disponibilità e modalità di acquisto.
📩 Contattaci oraTi risponderemo entro 24 ore con tutte le informazioni necessarie.
Domande frequenti – ECONEST 88
La casa può essere trasportata?
✅ Sì. Quando la casa è chiusa, può essere facilmente trasportata come un normale container.
Se è già stata aperta, può comunque essere richiusa e spostata da un team di professionisti qualificati.
La casa può essere rivenduta?
✅ Sì. La ECONEST 88 è un bene di tua proprietà e può essere rivenduta o trasferita come un normale immobile o bene mobile.
Serve un permesso per costruire?
✅ Sì, come in tutto il mondo. Per installare una casa prefabbricata servono
autorizzazioni urbanistiche. Il nostro team legale (M&P Lawyers) ti aiuterà in tutto il processo.
In generale, all’interno del Villaggio Heaven One, la casa può occupare massimo il 10% del tuo terreno.
È possibile personalizzare la casa?
✅ Sì. Puoi richiedere modifiche estetiche o strutturali, ma comportano
costi aggiuntivi e tempi di consegna più lunghi.
Quanto dura l’installazione?
⚙️ L’installazione richiede circa 48 ore, se le fondamenta sono già pronte.
Il nostro team si occupa di aprire, fissare e collegare la casa.
La casa richiede delle fondamenta?
✅ Sì. Ogni terreno è diverso, quindi il tipo di fondazione varia.
In genere si usano blocchi di cemento (costo medio circa €4.000), ma il cliente può scegliere liberamente.
Le fondamenta non sono incluse nel prezzo.
Fossa settica, pannelli solari e altri impianti?
🌱 Le case ECONEST sono predisposte per fossa settica, pannelli solari e altre soluzioni off-grid.
Non sono inclusi, ma possono essere installati in un secondo momento.
Hai altre domande? Il nostro team è a disposizione per chiarire ogni dubbio e accompagnarti passo dopo passo verso la tua nuova casa in Costa Rica.



English Website