Descrizione
Uno dei terreni più richiesti dell’intero villaggio è finalmente disponibile!
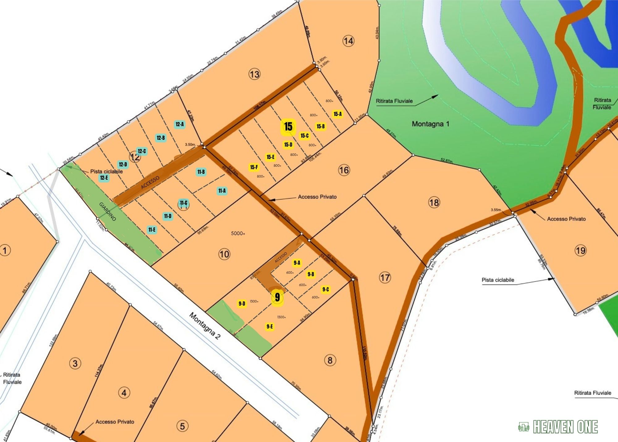
Il Lotto 15E si distingue per la sua forma rettangolare perfetta, gli 800 m² completamente pianeggianti e la posizione privilegiata all’interno del progetto Heaven One, immerso nella natura incontaminata della Costa Rica.
✅ Caratteristiche principali:
-
Superficie: 800 m²
-
Terreno pianeggiante, facile da edificare
-
Forma rettangolare, ideale per una casa con terrazza e giardino
-
Diviso con siepi naturali, che garantiscono privacy e ordine
-
Pronto alla consegna immediata
-
Accesso diretto alle vie interne del villaggio
Questo lotto è perfetto per chi desidera acquistare e installare una casa modulare ECONEST 48 o ECONEST 88, due soluzioni abitative moderne, sostenibili e completamente attrezzate, pensate per vivere o investire in Costa Rica.
💰 Offerta speciale:
Acquistando il terreno insieme a una casa ECONEST, offriamo uno sconto del 10% sull’intero pacchetto – un’occasione unica per realizzare la tua casa nel paradiso tropicale di Heaven One a un prezzo vantaggioso.
📍 Heaven One – San Carlos, Costa Rica
Un luogo pensato per chi sogna una vita libera, sostenibile e in armonia con la natura.






