Descrizione
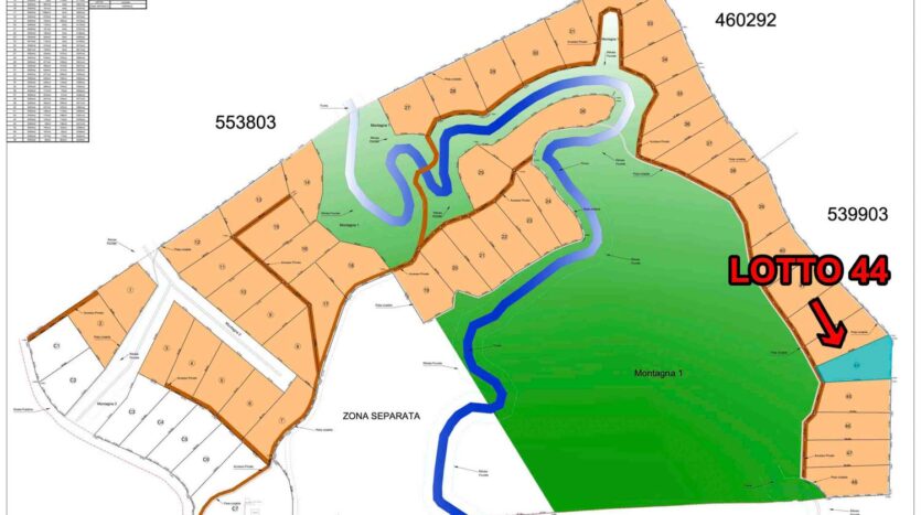
Scopri la possibilità di possedere una parcella straordinaria nel nostro splendido villaggio in Costa Rica! La parcella numero 44, con una superficie di 5.000 metri quadrati, offre un bel dislivello ideale per costruire una villa di lusso con infinity pool e una vista panoramica mozzafiato. Questa parcella è disponibile e pronta per essere acquistata.
Caratteristiche principali:
- Disponibilità immediata: La parcella numero 44 è subito disponibile per l’acquisto, pronta per essere sviluppata senza attese.
- Bel dislivello: Il terreno presenta un dislivello significativo, perfetto per progettare una villa con infinity pool e sfruttare al massimo le viste panoramiche.
- Vista mozzafiato: La posizione elevata della parcella offre viste spettacolari, creando un ambiente sereno e pittoresco, ideale per chi cerca tranquillità e bellezza naturale.
- Accessibilità: La parcella è facilmente raggiungibile tramite una strada privata, garantendo comodità e facilità di accesso.
- Costruibilità: È possibile edificare fino al 25% della parcella di cui una villa personale da 300mq, ulteriori abitazioni da 200mq e tutte le strutture che facilitino un’eventuale attività agricola. maggiori informazioni
- Ambiente naturale: Il terreno è completamente a prato, ideale per creare uno spazio verde privato e accogliente.
Non perdere questa rara opportunità di vivere in un luogo di straordinaria bellezza naturale. Contattaci oggi stesso per maggiori informazioni e per prenotare una visita.
Id Immobile: 24468
Superficie calpestabile: 5,000 m2
Dimensioni proprietà (mq): 5,000 m2















